MOGUĆNOSTI

Za investitore

Želite li da napravite MMH kamp?

Konsalting

Tehno-ekonomska analiza lokacije (Višegodišnje iskustvo članova našeg tima, pruža Vam sigurnost prilikom izrade Vaših objekata.)

Bez građevinske dozvole

MMH spadaju u mobilne objekte. Za većinu lokacija nije potrbna građevinska dozvola ni lokacijski uslovi.

ROI

Izuzetno brz povrat investicije. S obzirom na kvalitet gradnje, troškovi održavanja su minimalni.

Disperzija rizika

MMH objeki, po svojim tehničkim karakteristikama odgovaraju svim klimatskim uslovima.

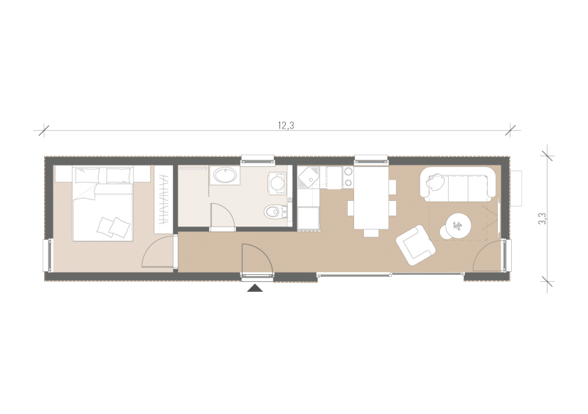
Želite sigurno ulaganje i isplativu investiciju? Želite da svojim gostima pružite komfor kakav očekuju? Da li ste upoznati sa pojmom „glampinga“? Želite li brzo da saznate okvirnu procenu Vaše investicije? MMH tim ima odgovore na većinu Vaših pitanja! Način na koji živimo i putujemo se promenio. Ljudi više ne žele jednodimenzionalni odmor. Ne žele biti samo puki statisti u luksuzim hotelima, već žele biti deo prirode, zbog čega kampovanje postaje sve popularnije. Kako bi se omogućio aktivni odmor u prirodi i pri tome se odstupilo od loših navika tradicionalnog kampovanja, sa pogodnostima kakve postoje u hotelima sa pet zvezdica, glamping postaje nova dimenzija odmora. Ovo jedinstveno iskustvo Vam omogućava da odaberete udoban smeštaj, da birate okolinu, a da pritom uživate u luksuzu, udobnosti, kao i ostalim pogodnostima koje pruže savremena tehnologija. MMH tim Vam nudi mogućnost stručne analize lokacije i izradu idejnih rešenja za Vaše nove potrebe, kao i alat koji će Vam biti od pomoći prilikom procene odnosa vrednosti uloženih sredstava i potencijalnih prihoda, odnosno da Vam napravi procenu isplativosti investicije. Unošenjem odgovarajućih podataka u data polja, kroz par koraka, dobijate orjentacionu kalkulaciju prihoda i rashoda za projekat Vašeg novog kampa. Novo vreme. Nove navike. Nove odluke. Donesite svoju! Vaš MMH tim!

Orjentaciona kalkulacija za proračun prihoda i rashoda vašeg glamuroznog kampa

Kalkulacija
Kontakt

Ukupan broj soba za izdavanje: 0

Ukupna investicija bez PDV-a: 0.00 €

Kreditni kalkulator

Prihodi

Kontakt

Detalji Vaše kalkulacije:

Cena zemljišta: - €

Ukupan broj soba za izdavanje: -

Ukupna investicija bez PDV-a: - €

Broj godina kredita: -

Godišnja kamatna stopa: - %

Ukupni mesečni rashod: - €

Cena najma sobe: - €

Prosečna popunjenost: - %

Ukupni mesečni prihod: - €

Kontaktirajte nas

*obavezno polje
*obavezno polje
*obavezno polje
*obavezno polje

Vaše prve goste možete da primite za:

GRAD PROJEKT STUDIO d.o.o.
Isaije Mitrovića 3, 78000 Banja Luka
Bosna i Hercegovina
SERBIA PROJEKT BIRO d.o.o.
Vlajkovićeva 29, 11000 Beograd
Serbia
GRAD PROJEKT BIRO d.o.o.
Gradnikokve brigade 53, 5000 Nova Gorica
Slovenia

Kontaktirajte nas